En vente dans votre agence Dolce Casa Immobilier, découvrez cet appartement niché au sein d’une copropriété récente de 2021 quai Louis Ferber.
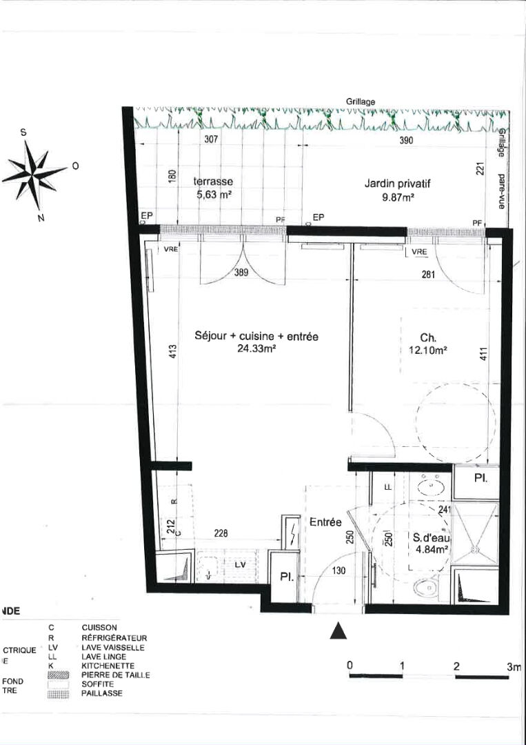
Situé dans un environnement paisible, cet appartement vous propose une entrée avec placard, un séjour ouvert sur un jardin privatif de 15 m², une cuisine US entièrement équipée, une chambre, une salle d’eau et des WC.
Pour plus de confort, une place de stationnement en sous-sol et une cave viennent compléter ce bien.
Pour plus d’informations, contactez votre agence Dolce Casa Immobilier au 01 48 72 51 60.
La présente annonce immobilière a été rédigée sous la responsabilité éditoriale de Madame Julie CRESPY – EI mandataire indépendant en immobilier (sans détention de fonds), agent commercial de la SAS DOLCE CASA IMMOBILIER LE PERREUX SUR MARNE immatriculé au RSAC de CRETEIL sous le numéro 451 134 761
Copropriété de 127 lots – dont 42 lots habitation. (Pas de procédure en cours).
Charges annuelles : 2760 euros.












